Көрулер саны:4 Автор:Сайт редакторы Жариялау уақыты: 2019-01-18 Шығу:Сайт
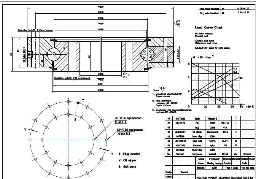
Сурет - бұл ұсақтайтын мойынтіректердің жиынтығы. Сызбаларда өнімнің құрастыру сызбалары, жартылай профиль қарама-қайшылықтары, өнімнің техникалық талаптары, беріліс параметрлері кестелері, өнім бөлшектері, бөлшектер, бөлшектер, бөлшектердің тізімдері, бөлшектер тізімі, бөлшектер тізімі және басқалары кіреді. Суреттер тек анықтама үшін.
1. Жігітпен жүрудің сфералық мөлшері
2. Ішкі және сыртқы сақинаның мөлшері: Кілт мөлшері, тесік, саңылау, соқыр тесік, саңылау, есептеме, сымдар, сымдар, сым, жіп өлшемі, H7-H9, саңылаудың дәлдігі, тесіктердің диаметрі мен төзімділігі
3. Қадам мөлшері
4. Орналастыру саңылауы, майы, лифтинг саңылауы, тесігі, пин тесік, допты тесік, май құятын тесік
5. Шығарманы герметизациялау, герметикалық формасы, герметикалық материалдар
6. Торлар мен тіректердің стильдері мен материалдары
7. Жуынатын мойынтірек Аяқтау, ағу, осьтік тазарту, радиалды тазарту, кедір-бұдыр
6. Параллель айырмашылық, ішкі және сыртқы айырмашылық
7. Берілістердің дәлдігі, байланысты параметрлерді есептеу
8. Орнатуға арналған арнайы талаптар: сызбалар, ескертулер, ескертулер, мысалы, контурлар, есепшот сияқты, мысалы, майлау саңылауларының орналасуы және майлау әдісінің өзгеруі, мысалы, редукторлар параметрлері, мысалы, Өлшемдердегі жеке өзгерістер және жеткілікті.
Қорытындылай келе, ұтыс ойынының дәлелі айналма болып табылмайды, зауытқа суретке түсіру жоспары бар, сонымен қатар сатып алушының өз жабдықтарының қажеттіліктеріне сәйкес сатып алушының техникалық қызметкерлері де бар. Бұл процессте, егер белгілі бір параметр қате болса, онда мойынтіректерді жинауға, қыстыруға болмайды, ауырады, қатты ұйықтау және қайтару уақыты мен шығындар, нуанстық, тұрақтандыру, сызбаларды қарау үшін еркін өндіріледі.
Әдетте немқұрайлылық: орнату саңылауы тығыз емес, нәтижесінде подшипник орнатылмайды; Майлау саңылауы бұрғыланбаған, беріліс саңылауы дұрыс емес, майлау орны дұрыс емес, ішіндегі және сыртқы жабдықты пайдалану мүмкін емес, пайдалану мен жабдықтардың дәлдігі сәйкес келмейді, бұл мойынтірекке әкеледі подшипникте өлім, сондай-ақ подормальды шуылдың жиі кездеседі.
Үйі | Біз туралы | Өнімдер | Жаңалықтар | Қолдану | Қолдау | Бізбен хабарласыңыз
